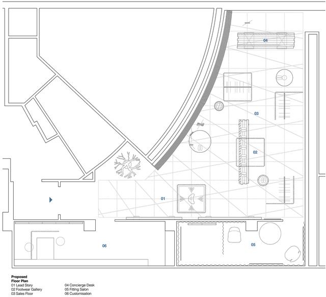
耐克专卖店(灵活的运动商店——耐克零售概念专卖店设计赏析) 瞬间懵懂 2022-04-20 14:07:17 宽松的皮革家具参考了抽象的运动造型;大媒体墙是CNC切割的木条。 横梁可以安装在墙上,为各种鞋子打造一面墙。 横梁可以由皮带和尼龙纤维支撑,它们具有定制的编织方法。 Led灯管呈三角形排列,悬挂在钢制吊顶网格上。 项目中使用的具有不同纹理的梁 项目平面 做成墙的梁的图纸 正品耐克网上专卖店 您可以还会对下面的文章感兴趣 耐克官网店是正品吗(实体店买折扣鞋疑为假,店家坚称是正品,记者走访多家授权店验货) 耐克正品旗舰店(耐克领衔双十一,全品牌值得剁手的榜单攻略) 正品耐克网球鞋(为莎娃量身打造:NIKECOURT 联手 colette 公布 全新网球系列鞋款) 耐克旗舰店正品官方店(Nike官网再次打折!赶紧去看看) 相关文章: 并查集路径压缩(这么理解并查集就简单多了) 并查集c++代码(windows上利用C++语言查询设备 (windows,vs2010)) 并查集经典例题(省选知识点-并查集与带权并查集介绍及应用) 并查集例题(热搜第一!警方提醒:赶紧自查) 并查集算法(数据结构与算法-进阶(十)生成树& kruskal 算法) 苹果7和6s有什么区别(iPhone6 s和iPhone 7的差别真的不大,性价比上6s更胜一筹!) 苹果6s和7和8的区别(iPhone 8对比iPhone 7:升级到底值不值?) 6s和7的区别的屏幕可以互换吗(祖传手艺新问题,苹果iPhone6s要怎么贴膜?)