从2013年开始,中国建筑设计研究院为国内手机厂商vivo完成了一系列建筑综合体设计,包括制造、科研、培训、住宿等综合功能。本文中,主持该项目的徐磊建筑师通过回答问题的形式,阐述了设计团队对当前需求下“新工厂”设计的理解。
▲总平面图
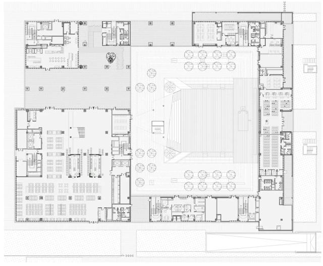
Vivo总部位于东莞市长安镇工业区,包括主办公楼、实验楼、综合楼、三栋塔楼公寓、接待中心、两栋停车楼等九栋建筑。与大多数企业总部不同的是,vivo新总部承载了几乎所有的生活场景,包含了《雅典宪章》提出的现代城市功能四要素——“工作、居住、娱乐、交通”。这个公园类似于一个小的城市居住区。理顺几十条交通流线,也是在梳理生活的所有可能,把宏观规划和精细化设计结合起来。
视频提供:vivo
01 & # 34;新工厂& # 34;
“与新厂沟通”是你总结vivo项目时用的题目。工厂的设计对大多数建筑师来说是一种陌生的类型——生产技术有很多限制,离日常生活体验很远。那么vivo系列被称为“工厂设计”的设计准确吗?您和您一直专注于公共建筑设计的团队如何看待这种设计类型?
徐磊:
“新工厂”这个词是一个非常合适的表达。应该是“中国特色新工厂”而不是“新工厂”。
它有几个特点,出现在手机行业,也是其他制造业的共性。手机行业既是技术密集型,也是劳动密集型,有大量的工人和R&D人员。它的工厂包括办公室、R&D、工厂和宿舍。这和国外的模式不一样。在发达国家,工厂不需要解决宿舍问题。他们的工薪阶层不属于低收入群体,不能接受宿舍这种方式,习惯由社会解决住宿问题。在vivo,除了工人,技术密集型带来的科研人员中还有很多刚开始工作买不起房的年轻人,他们都需要工厂提供的宿舍。
它是厂房的组成部分,也是最容易做的,因为它的技术基本是固定的,虽然在这个项目中并不容易。一开始vivo甲方并不是特别明白技术的重要性。他们以为自己很懂手机制造,却没有意识到技术流程需要一个翻译过程,翻译成建筑、结构、机电专业的需求。甲方聘请的技术顾问在这方面与我们合作很多,然后不断调整修改。东莞和重庆的工厂都是这样做的。只要建筑师头脑清醒,有责任心,甲方有制造经验,是没有问题的。
因此,中国特色的新工厂模式实际上是一种综合状态,它包括行政管理、技术研发、生产制造、学习培训、餐饮住宿、休闲运动等功能。
▲写字楼里的庭院
▲宿舍区
▲实验楼
我们喜欢和vivo合作的原因之一是他们强调不希望大家在使用中有层次感。比如食堂没有等级设置。对于工人,R&D人事和管理,所有食堂都可以去。因为自身的功能设置,比如厂区内的餐厅有大量的工人,但其装修水平并不比其他餐厅差。这种平等的观念,除了有利于招聘的考虑之外,更多的是源于这样一个事实,即这是他们企业文化中非常明确的一点。
▲综合楼庭院
▲实验楼前的“波浪”花园
在设计过程中进行了大量关于“流线”和“效率”的讨论和研究,设计团队甚至绘制了一张非常复杂的一天不同时段的人员流动统计表。这种顾虑是业主的要求还是建筑师的想法?
徐磊:
除了“精简”和“效率”,我们还需要加一个词——“感觉”。因为他们是真正的拥有者和使用者。比如设计小别墅的时候,沟通的是别墅的主人。这个时候设计就可以做得很好,因为设计师是直接和用户沟通的。但我们真正正常做的是两种,一种是政府主导的公共建筑,一种是开发商主导的开发项目,建筑师面对的不是真正的用户。与使用相关的信息是翻译过来的,其实并不纯粹。
注重用户感受,包括“舒适”和“流线”以及刚才说的“效率”。比如流线处理不好,就会产生拥挤等不好的感觉。当然,除了常规的用户体验,vivo系列还有自己的特点,比如更大的流量,集中的通勤时间,食堂使用,运动需求,时间分配等等。
在这个项目中,我们遇到了真实的用户,手机制造业本身就是秉承用户体验第一的理念。他们特别爱讲使用体验,就是手机玩的东西,这方面很普遍。但是用手机的人和用空的人有重叠,但并不完全一致。这两种感觉是不一样的。还有一些其他项目也重视这一点,如“砖楼”改造,包括嘉德集团董事长黄晓华的一些项目。他虽然是一个开发者,但也是一个有着敏锐代入视角的运营者。
▲建筑师做的人员流动研究表之一
关于效率,这个设计强调的是“效率中庸”——不追求更快的电梯,最便捷的流线,最紧凑的布局,而是一种中庸。这是甲方提出的还是建筑师提出的?
徐磊:
当效率极高时,舒适度必然会降低,用户的感受也会不好。有时候,要有高效率,有时候,有高效率是一件坏事。人们为什么喜欢去成都?因为在这个城市效率不是很高。当你心情不好的时候,你对效率的渴望也会受到负面影响。
甲方和提出这个想法的建筑师之间是有互动的。一般来说,建筑师总是不愿意为了效率牺牲太多人的感受。业主也有这样的需求,但需要不断平衡度。很多时候我们和甲方都把握不好,只能不断尝试和调整。
▲办公楼和接待中心
▲综合楼和走廊
英雄主义
崔凯院士曾经在评价vivo项目的时候用了“英雄主义”这个词,表达了他对你用一些几何形状来处理巨大规模的沿海沙滩空土地的感受。你在最初的设计中是如何把握这个海滩的,最初的设计中是如何把握尺度问题的?
徐磊:
在最初的设计中,厂房是主体,厂房本身必须是一个规模较大、体量相对完整的体量。第二,企业建筑有个特点,希望能做广告,就像苹果,包括国内一些请明星建筑师做设计的企业。尤其是对于手机行业来说,其品牌意识极强,你做的每一件事都要强化品牌,所以需要对房子有一定的认可度。再者,从具体环境来看,只是因为太开阔,场地和大海之间还有一条高架滨海公路,旁边有再建高架公路的可能。其实网站感觉很压抑。当面对这样的新土地时,有几个对象首先负责控制地盘的任务。我们做的另一个项目,vivo人文生活区,是为了更多的呼应与周边山体的关系。
格式塔空也和vivo的办公模式有关——需要大量集中高效的沟通。其实在这个项目中,我们很自觉的关注环境和人的使用,并没有因为格式塔而放弃这些。
▲公园鸟瞰图
▲椭圆形办公楼
▲方形的综合楼
陆地位于珠江口岸,属于亚热带季风气候。这种气候给设计带来了什么影响?
徐磊:
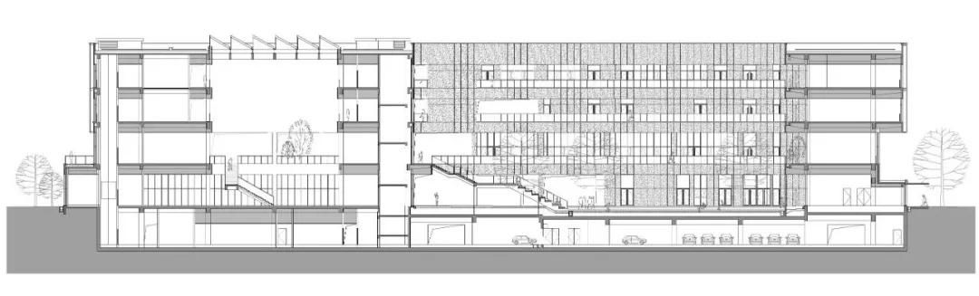
气候最重要的影响是遮阳和下雨,所以步行廊道系统要非常完整。廊是岭南建筑中非常重要的建筑语言,有一定的空度。
有的地方挑檐比较大,其实是为了遮阳的目的。然而,我们低估了这场雨的强度。在设计过程中,甲方不断提醒我们,这里下雨的时候会特别大,而且经常会有台风,雨也经常侧着走。
有两种方法可以解决这个问题。走廊要尽量设计的靠近墙壁,风不会穿透。要么走廊要足够宽,要有侧面防雨措施。我们对这件事的理解也是在设计过程中不断修正的。比如我们本来觉得设计一些路口空房间不防雨就不错了,但是甲方对此很敏感,所有道路都要遮阳挡雨。
▲走廊和广场
▲办公楼面对内院的平台成为讨论交流室空
选材和结构设计中体现的“轻盈”和“通透”是出自建筑师的主观风格偏好,还是有其他考虑?
徐磊:
先说空。也就是刚才说的“英雄主义”,为什么选择做椭圆形?第一,是外部地形;二是使用模式的原因;第三,他们回归自己对企业文化中公平平等的追求——不希望任何人都是最强的,而是希望所有人都处于平等的状态;还有一点就是对沟通的重视。圈子空房间来源于古典学院的概念。在这个空的房间里,大家可以随时看到对方,打招呼,交流。但与此同时,这个空房间会变得非常完美,甚至可能会产生一种封闭感,过于饱满(视觉形象),所以在外面用U型玻璃来削弱这种封闭感。包括方形庭院,也就是餐厅和训练中心(综合楼),外面都是用多孔板来“中和”这种所谓英雄主义的感觉。
▲综合楼立面穿孔板
事实上,许多仪式活动都可以在这个椭圆形空房间里举行。我们和甲方曾经设想过在这里吃年夜饭,办集体婚礼,虽然现在还没有实现。除了吃饭,还可以放电影,开派对等等。基于整体的考虑,我们选择了完美的布局,只是为了在材料和接缝的设计上更轻便,不想有压迫感。
▲写字楼里的庭院
▲办公楼及接待中心首层平面图
▲办公楼简介
03因子
业主基础设施规划部门及其所代表的特定用户的需求,以及企业文化中相当抽象但又无法回避的需求,其实都是“人”的要素。一般来说,在谈设计的时候,“人”是放在后面的,或者专门化为“功能”、“流线”等等。这个项目中人和设计的关系是怎样的?
徐磊:
幸运的是,我们遇到了一个负责任且聪明的用户代表,我们能够不断地与他交流。这是非常难得的事情。
关于如何理解人。“人”很容易抽象,比如某一类人等等;具体化了,量化了,就会出现“萝卜青菜各有所爱”,然后好像就要打字了。尤其是对于大量人使用的建筑来说,这是一件非常矛盾的事情。但是我们建筑师的工作本身就是平衡和综合各种条件。针对使用群组使用模式的地方,我们大多从两个方向解决问题。首先是寻求最大的人群,80%的人。我们跟甲方沟通的时候明确讲过这个,设计不可能让所有人都满意,但是要让80%的人满意。第二个方向,根据最大公约数原理。一个决策往往有不同的影响,对某一方面来说可能不理想,但对另一方面来说却是更好的选择。最大公约数原则是“平衡”和“最大数”的策略。
另一方面,要有“设身处地”的意识”,做任何设计,都要通过得到的信息把自己变成用户。这时候,你不要怕麻烦是很重要的。因为这会是一件很麻烦的事情,如果你真的要去听,去改正,显然会比单纯的设计基本符合要求增加很多工作量。
第三,我想引用甲方的一句话,“放弃一些建筑师的执念”。这是一个非常好的提醒。有时候我们会因为自己的教育背景和设计经历形成一些判断。虽然来源于审美体验和使用体验,但不一定是最适合新情况的。
设计的时候一定要考虑受众。比如建造公共建筑,我们会考虑政府、观众、艺术家等等。也会考虑奖项和照片,考虑是否有一些建筑意义,甚至社会学意义。但是这些考虑在这里合适吗?和它的用户真的很痛苦吗?这一点非常重要。自己背后其实有很多杂念吗?执念中大概有一些杂念吧。
▲综合楼内的餐厅
▲综合楼首层平面图
▲综合建筑概况
真正了解和理解人,并不等同于仅仅谈论人。有时候你觉得这样很舒服,也许他们不是;如果你觉得很美,他们可能不这么认为。你以为人家肯定会关心,可是人家根本不关心你的关心,而你可能根本没有意识到他们的关心。
比如说,比如说食堂的就餐流线,怎么取餐和收餐,谁会遇到谁,会不会有拥挤感,座位的大小等等。,这些都是我们在做飞机的时候不断研究,看是否符合他们的行为习惯。在大学食堂可能是一种说法,这里是另一种说法。
比如一些通道上的材质,包括颜色,亮度,灰度,其实对这些都很敏感。我们建筑师容易耍酷,喜欢冷酷粗暴,对吧?但是他们可能喜欢更普通的东西。我们需要让普通人舒服——普通而不俗气。
vivo的几个股东都有非常强的决策权,事情很快就会定下来。这是好事,但有时候也会带来一些问题。这些老板愿意和架构师交流,但是对于他们来说,企业里重要的事情太多,尤其是这几年手机行业竞争激烈,是一种高度紧张的状态,没有足够的时间去交流,包括建筑设计本身,会觉得有点遗憾。
▲写字楼庭院
什么是效率

“生产力”(效率),这个在其他设计中很少被关注的问题,在这里“场所感”(情感)和“生产力”是否有冲突?还是制造了特殊的张力?
徐磊:
这两者并不矛盾。不是快才叫做效率。就像一个孩子做作业,快了却错了,这不叫效率;如果你又快又对,做了三年累了,不想做了,那就不是效率。效率就是让他愉快而执着地做好一件事,这就叫效率。
我们说的地方感,其实包括自豪感、企业认同感、品牌知名度,和拥有真实的生活、高效的工作是一回事。如果有矛盾,这些矛盾是可以用钱解决的。比如推广效率不高,那就多加几部电梯吧?连接效率不高,多加步道。当然,这不会是无限的。没有人想浪费钱。归根结底,这是一种投入和产出的平衡。我们经常讨论这个问题。甲方对此也很在意,因为所有的钱都是他们自己的钱,不是政府拨款,也不是快速资本运作产生的,而是他们一个个赚来的。他们还不断告诉我们,不怕花钱,但是花钱一定要花在点子上,要有用。不花钱,就是你们建筑师玩玩,或者拍某张照片好看,这是不行的。
▲综合楼庭院
05有效放松
在vivo的设计中,企业的技术背景对设计有影响吗?
徐磊:
手机制造业既是技术密集型,也是劳动密集型,不是纯高科技企业。技术是很烧脑的,所以他们想给他们提供放松的场所或者方式,但是什么是放松呢?现在我们清楚地知道这些人最有效的放松方式是运动,而不是像我们想象的那样喝咖啡什么的,他们很多人不喝咖啡。所以我们很在意运动场地的设置,比如操场、跑道、篮球场、羽毛球场等。
我们不能把我们想象中的“放松”放在他们身上。例如,如果环境是庭院式的,我们认为他们会放松。某种意义上也是建筑师的执念。你认为别人需要的不是别人需要的,你可能没有做过别人需要的。当然,我们可以说我们会引导,但这就会涉及到度的问题。
说到这里,我想起另一件事。华为的“欧洲小镇”也在东莞,正好是我的邻居,高级软件工程师。他刚调到华为,去“欧洲小镇”培训。他非常喜欢那些古典风格。由于我们这一代人成长在一个整个社会都缺乏审美的时代,中国理科男和亚马逊理科男的审美感受是不一样的。所以vivo项目做到这一点并不容易。他们可能希望一些更流行、更生动的东西。
vivo公园鸟瞰图
▲综合楼前的篮球场
▲写字楼庭院
中国建筑设计研究院设计的vivo系列项目
东莞制造中心重庆制造中心已建成
在建东莞R&D中心,东莞生产基地
设计中重庆制造中心B座
vivo总部建设团队
业主基建规划团队李良能万永荣李梁邹丽刘伟昌等
设计主持人徐磊、李淼
项目经理 Xi志刚
建筑设计孟海港孙朱婧张茵石化陈欣
结构设计任庆英王琦张福奎张雄弟刘福张晓宇吴敏李森张小蒙
给排水设计董超宋高静东贸
暖通空调设计杨
电气设计徐冬梅,李喆,孙泽仁
总平面设计郑爱龙
景观设计关王吴军朱越杨延辉何铭戴敏关洁雅李何谦李飒金汤润国王瑜婧柯曹磊魏华
室内设计郑中设计事务所
幕墙顾问深圳市三鑫科技发展有限公司
施工单位中建三局有限公司
中建四局有限公司
建筑摄影王、、黄永荣、范溪摄影
部分图片由vivo公司提供。
这次采访[/S2/]/刘爱华
来源,版权:中国建筑设计研究院








