前段时间刚做完一个教育培训弱电监控安装项目。全部报价共计5W,从开始布线到最后安装设备,前后调试了一个月。装修前期水管工进场,我们弱电也是跟着进场布线。两个工人花了三天时间给这些点布线,然后他们就在装修现场等待其他工作的进展。
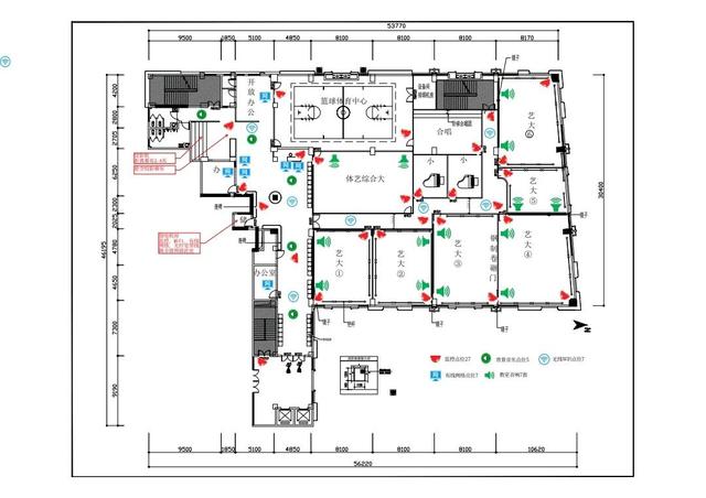
弱电监控点位图
其间,木工封吊顶的时候,我们去工地调过一次点的位置。装修中途,甲方又改了图纸,我们又去现场调整。然后,直到装修差不多了,甲方才通知可以安装调试设备了。后面的安装调试比较顺利,只有一点摄像头无法工作。后来查明原因,发现是电工在吊顶洞口装灯时不小心把网线切断了,接上后终于解决了问题。安装和调试设备花了五天时间。经过测试,每个点的功能效果都还不错。
付款方式为前期签订合同支付40%预付款,安装阶段中间设备支付50%设备款,安装调试完成验收后支付最后10%尾款。最终一切按合同执行,没有违约,安装调试后一周支付全部款项。
弱电监控施工合同
先说这种情况。真的只剩内裤了吗?[捂脸][捂脸]
弱电监控报价单









