以前老式的农村房子出门会有一条过道,第一是为了防水防尘,第二是在进入室内的时候有个过渡。现如今房子建的比以前的越来越好看了,但是很多人建房还是喜欢在外面加一个走廊,今天小编就介绍几款带走廊的别墅给大家吧!
编号: DC0233
层数: 二层
结构形式: 砖混结构
主体造价: 28-32万
开间: 11.1米
进深: 12.7米
占地面积: 133.49平方米
建筑面积: 259.6平方米
    
    
一 层: 走廊、玄关、客厅、卧室、厨房、餐厅、储藏室、卫生间、车库
二 层: 客厅、卧室(附卫生间,阳台)、3卧室、书房、卫生间
阁 楼: 储藏间
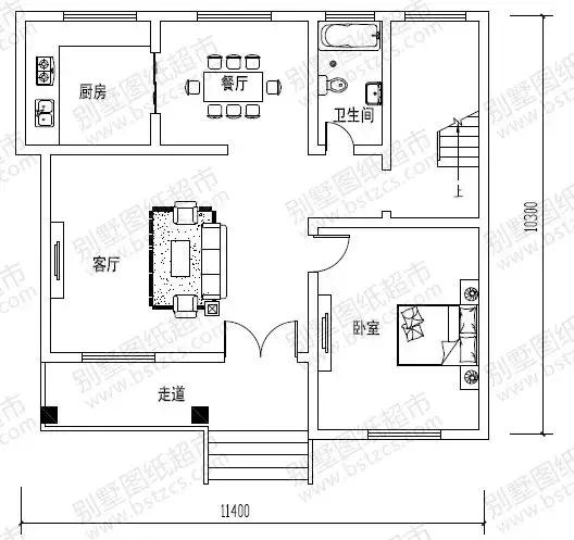
编号: DC0207
层数: 二层
结构形式: 砖混结构
主体造价: 18-22万
开间: 11.4米
进深: 10.3米
占地面积: 105.95平方米
建筑面积: 210平方米
    
    
一 层: 走廊、客厅、卧室、厨房、餐厅、卫生间
二 层: 客厅(附阳台)、卧室(附阳台)、卧室(附书房)、卧室、卫生间
编号: DC0354
层数: 二层
结构形式: 砖混结构
主体造价: 32-36万
开间: 13.8米
进深: 12.3米
占地面积: 176.06平方米
建筑面积: 362.03平方米
    
    
    
一 层: 走廊、门厅、客厅、卧室(附卫生间)、卧室(附衣帽间)、厨房、餐厅、卫生间
二 层: 起居室(附阳台)、卧室(附衣帽间,书房,卫生间)、卧室(附2露台)、卧室、卫生间
编号: DC0298
层数: 二层
结构形式: 框架结构
主体造价: 32-36万
开间: 15.6米
进深: 13.2米
占地面积: 194.53平方米
建筑面积: 379.14平方米
    
    
一 层: 客厅、棋牌室、卧室(附衣帽间,卫生间)、卧室、厨房、餐厅、洗衣房、卫生间
二 层: 起居室、卧室(附书房,衣帽间,卫生间,阳台)、2卧室、卫生间、露台
阁 楼: 储藏间
编号: DC0365
层数: 三层
结构形式: 砖混结构
主体造价: 24-28万
开间: 12.3米
进深: 9米
占地面积: 115.87平方米
建筑面积: 300.19平方米
    
    
    
    
一 层: 走廊、门厅、客厅、卧室、厨房、餐厅、卫生间
二 层: 起居室、娱乐室、卧室(附露台)、2卧室、卫生间
三 层: 健身房、卧室、卫生间、露台

编号: DC0353
层数: 三层
结构形式: 框架结构
主体造价: 40-45万
开间: 14米
进深: 13.8米
占地面积: 196.66平方米
建筑面积: 434.81平方米
    
    
    
    
一 层: 走廊、堂屋、客厅(中空)、会客室(附内阳台)、卧室(附卫生间)、厨房、餐厅、卫生间
二 层: 小客厅(附阳台)、卧室(附卫生间,露台)、卧室(附书房)、卧室、卫生间
三 层: 活动室、卧室(附卫生间)、卧室(附书房)、卫生间、阳台、露台








