
写在前面
生活最避免不了的应该就是“突然的意外”,更多人可能选择抱怨它,但其实用一颗宽容之心去拥抱它,我们会发现生活更多美好的一面,可能是自己喜欢的一面。
今天的屋主就以一颗拥抱之心去装修,最后把家变成了众人口中“理想中的家”。
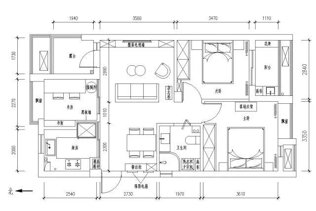
平面图

房间面积不算小,三室一厅,大约有80m²左右,房型也是方方正正的,乍一看好像也没什么毛病。
但细看,客厅北向,又有露台在外阻隔窗外大好的阳光,客厅除了黑还是黑。(对,突然的意外就这么意外的出现了)
所以对于户型对了局部的改造。
改造①:将与客厅相连的厨房与书房的墙面敲掉,换成了大面积的玻璃移门,为客厅引入了不少自然光,视野也觉得开阔了不少。
改造②:重砌厨房与书房的墙面,增加厨房的面积的同时,利用空间的错位创造了冰箱与书架的内嵌空间。
改造③:细看户型图不难发现房间其实没有玄关(突然的意外之二),但改造后厨房与玄关的墙面的空间用到极致,在不占用过道的情况下,开辟了一个鞋柜,弥补了没有玄关的尴尬事。

家具布局图
客厅

虽然没有完整的玄关,但是一打开门就能家的样子,小姐姐内心也是心生欢喜的。
想想也许回家一开门,就看到沙发上躺着自己喜欢的人和猫大人,轻轻说声,我回来了,这不就是理想中的生活吗?

客厅横向比较窄,干脆一张三人座沙发再配一张懒人沙发,简简单单的。
理科生的小姐姐却有着读书人的情节,于是把整面电视背景墙做成了书架,梦想与现实(现实其实就是收纳啦)好像都有了。

这网红的细框门确实颜值颇高,提升了房间的“气质”。但是光有气质怎么够,关键是实用实用实用,没错他们正是为客厅引光的两大功臣!

再po一张书房看客厅的,原木色的书柜、粉嫩嫩的懒人沙发、厚实的三人沙发,客厅的夜晚也是有点小温馨啊~

有朋友来时,客厅就是厮杀的战场。咳咳咳,是牌局打牌的好去处,场面不要太激烈。

这是后来入手的宜家落地灯,夜晚瘫在懒人沙发里,灯光洒落一地,翻翻喜欢的书籍,也是惬意。
餐厅

餐厅以白色为主,虽然餐桌不大,但是选了两盏相配的吊灯,两个字“任性”。
后面的餐边柜的矮柜台面本来想放水壶水杯,现在倒变成进门时放包与钥匙的好地方。虽然不是原来设想那样,但是这样似乎变得更加合理,更加便利。

给餐桌换一张桌布就是另一副样子,上面更多的是北欧风,这倒多了几分日式的赶脚。

餐厅看厨房,抬眼就是家里的大冰箱,冰箱上贴的都是生活的一些小回忆。
厨房

厨房是U字型的设计,不过两边厨房台面大小不一,左侧是正常的60cm,右侧是46cm,在不影响厨房正常使用的同时,更多的利用了空间。就问,有没有棒棒的!

做饭的人应该都会更喜欢大单槽吧,洗碗洗锅不要太爽。
窗口还放了两盆绿植,小编听人说喜欢植物的都是热爱生活的人,不知道小姐姐同不同意(偷笑)。


为台面空出更多的操作空间,所有的厨房用具上墙,统统上墙。

小姐姐还有收集漂亮杯子的习惯,小小的橱柜都被慢慢填满。
书房

书房的全局图,左侧是顶天的书柜(又想起了小姐姐放不下的读书人情节),右侧就是工作台面。



窗口是布小丁大王的地盘,没事就爱在这发呆。

超好用的戴森吸尘器,装在猫厕所的上方,铲屎后清理起来超顺手。
卧室

主卧背景墙刷成了灰色,好看到不忍心将装饰画钉在墙上,就这样随意的摆放也是好看的。


主卧的床头是两个人的风格,右侧是家属的简单风格,左侧是小姐姐的凌乱风格。

衣柜门结合了推拉门与折叠门的优势,放衣服的时候一点也不占地。

床尾是从旧家带过来的宜家衣架,挂穿过还不需要洗的衣服。酱紫就不会和衣柜的干净衣物混在一起,也是个便利的好物哦~


次卧用了和主卧一致的颜色,干净清爽。不过因为平时不住人,一直是未完待续的状态,以后慢慢补充吧~

次卧望出去就是小小的植物园,夏天也是相当的清爽。
卫生间


因为不能封阳台,所以洗衣机与干衣机就放到了卫生间,空间上倒是利用的刚刚好。

洗衣机旁的边柜是小姐姐的得意之作,平时放放洗浴用品和洗衣液,算是利用了边角的空间进行收纳,而且炒鸡方便!

超强收纳功能的镜柜,打开确实东西太多而有些凌乱,但是关上门就干干净净。

夸赞一下拥有超强功能的水龙头,不仅可以抽拉、抬高,而且还有花洒的模式,用起来也是一流的棒。
阳台

阳台也是个“突然的意外”,因为物业不让包阳台,在装修时被小姐姐一度放弃。
不过生活的奇妙之处就是来点充满“朝气”的小植物,阳台俨然变成了一个活力四射的小花园,好像还有点越看越好看了。
赶紧的上一波小花园的美照。




微风轻拂,窗外风铃叮当响,好像是在说着今天的美好~

小姐姐一家人的全家福


图片以及清单由YOYO酱野萌生长提供
想要了解小姐姐更多有趣的生活
可以添加公众号『野萌生长』哦
注:公众号转载需先获得屋主授权
详询微博@YOYO酱野萌生长
喜欢这套案例的话请点赞
欢喜雀跃的小手在哪里?

1.从毛坯房到入住,你需要做哪些功课?
2.26万打造89m²北欧小清新,拼接式玄关征服了一票颜值党!3.买整体橱柜的时候,别当傻白甜!
4.75㎡简约风只要9万,玄关玻璃隔断让人一眼种草!



