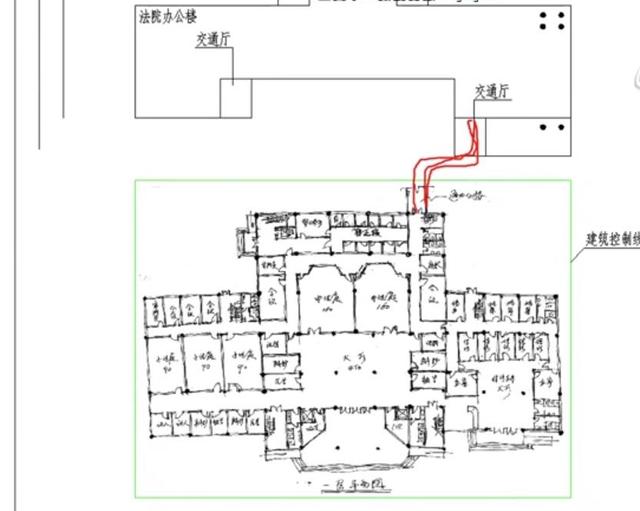
针对扣分点画图


不超出场地控制线,可以修改最边的柱跨


01
建筑轮廓
轮廓与平面一致;
标高按规范写H=xxm,或标三角号(不加底下横线),通常做题时不加室内外高差


02
出入口

1.口的位置在08年之前常考
2.满足大于交叉口70米距离,
3.绿化带开口要窄一些,
4.题目中没有开口数量,那么默认为一个开口,市政开口需谨慎,多开口会扣分。
5.右进右出


7.分流原则,不主动不拒绝,按题目要求做

2008年,2012年,根据题目要求做了人行分流


2013年没有特别表示

2018年,按要去做人车立体分流

客货流线没有要求就做客货混流

2014年,开口满足70米要求

位置对应泡泡图

2018、2019年较少的考虑用地红线以外因素
关键词

既有住宅
靠近内部区

避免嘈杂、污染

不遮挡采光

既有办公楼
靠近办公区

在草图中表示连廊,避免忘记

既有商业建筑,可能没用

既有后勤宿舍,靠近后勤宿舍区


既有医技楼
新建病房、门急诊靠近它,当心连廊

既有病房楼,南部空出康复绿地,绿地上不乱开口(儿科开口),当心连廊

既有图底建筑对位
有的对位

有的没有对位,由控制线内建筑密度决定

水体
居室采景

重要公共空间采景

远离道路、汽车

城市绿地公园,小景可能没用

可利用某条城市道路,可以=一定


如2014年真题


03
道路关系
1.一级道路:对齐建筑及场地出入口

2.二级道路:和车行有关的道路。建筑外退7米,是车道内测,再往外偏移7米,是车道外侧,用平行尺画。内侧道路倒圆角。因方便观湖景,取消环岛,增加停车场。


3。建筑入口道路。

04
停车场

机动车布置在道路外侧,靠近入口,垂直停放。



独立停车区

城市道路靠东,停车区靠东


尽量拉直、拉齐、成环


非机动车,靠近入口,保证面积

05
各种场地

其他场地——预留用地:
- 矩形
- 严格同建筑内外对位
- 位置较深

入口广场要求画就画。

专用场地:
- 靠近相应的功能
- 环岛外侧(卸货场地除外)
- 可能设置采景、采光
- 规避危险(儿童避免人流集中处、高层扑救面)

衣物晾晒靠近洗衣位置,道路外侧,可采光

绿化场地:内圈点草,外圈种树

绿化带退让,圈出来,标出来

L形广场,标注三个尺寸线

包括其他广场

总结

单独练习总图六七套图,重点练习公共独立停车区。40分钟内画完。





