深圳夫妻160㎡的家,因太会装修而意外走红,全屋没有丝毫“俗气”
可以说初次看见这套位于深圳的大平层时,便被深深吸引!无它,屋主夫妻俩,实在是太会装修了,把现代风布置得轻奢精致又高级大气,而且仅凭一个厨房就圈粉无数,家居氛围真的超棒!总之,全屋没有丝毫“俗气”,难怪意外走红,被无数网友点赞装出了大宅风范,不信我们一起来看看这对夫妻家中的高级场面吧。


原始结构图

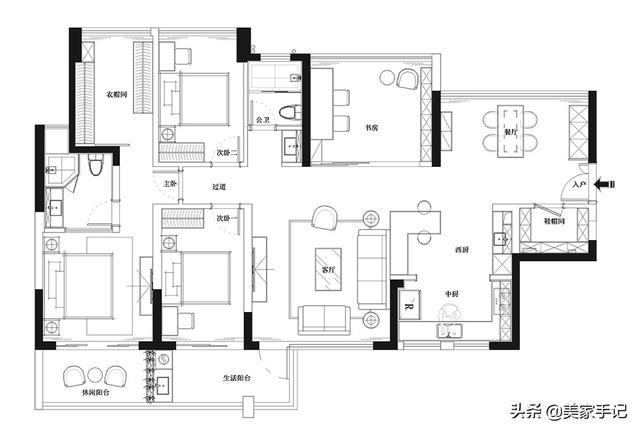
平面布置图
这是一套160㎡的房子,由于赠送面积比较多,比如入户花园便是如此,所以可以做到六室两厅的格局,只是这样一来会导致以客餐厨为主的公共区显得比较局促,加之近期只有男主一个人住,遂打通客餐厨还有入户玄关和书房,使其成为一个通透敞亮且相互对流的开放式结构,这样住起来,舒适性可以得到极大地提高。下面我们来看实景。
入户&餐厅

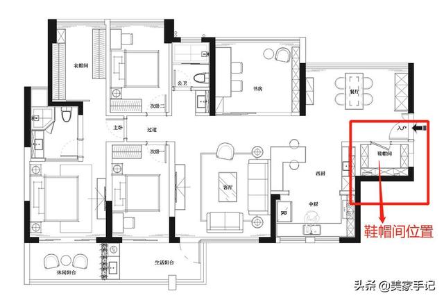
进门是赠送的入户花园,由于面积比较大,就结合餐厅采用了一体化的设计,这样既提高了空间利用率,也能在最大程度上,实现和客厅的南北对流效果。同时,入户花园的右侧,设置了大面积的落地窗,这样相比那种空间昏暗狭窄的走廊过道式玄关,无疑能让回家的心情变得更加开阔。图片左侧的话,靠墙设置了挂放衣帽和手包的洞洞板,再有就是通往鞋帽储物间的隐形门。

鞋帽间具体位置如上图所示。

换一个方向可以看到进门右手边设置玄关鞋柜,整体采用底部悬空的封顶式结构,配上灰色系的免拉手柜门,如此既满足了基础的收纳需求,随手物品的摆放以及码放鞋子等等,同时配上干净利索的白色顶面,还能看着精致高级,又十分的有质感。


餐厅摆放了纹理粗犷的岩板餐桌,配上细腿结构的餐椅,显得很是时尚精致,尤其是当石材和铁艺,这两种不同的元素碰撞在一起就更是如此了。其它则是对面的餐厅墙,左侧采用栅格元素,让空间显得更有层次感和立体感,配上右侧温润自然的木饰面,还有底部悬空的半高餐边柜,以及插花和装饰画等等,可以一扫现代风的冷清之态,让效果变得更加温馨,同时既满足了基础的收纳需求,也能为空间注入了些许生机与活力。
另外,坐在餐厅的就餐的时候,还能透过大面积的落地窗看看风景什么的,很是惬意。
客厅&厨房



客厅结合左侧的西厨采用开放式设计,这样空间显得敞亮多了。硬装方面的话,客厅以四周留槽,然后嵌入灯带的悬浮式大平顶为主,如此看着干净利索又极简高级的同时,开灯后还能烘托温馨的氛围。右侧是电视墙,中间做了悬浮结构的块面造型,配上底部悬空的一字型电视柜,效果其实也不错。
需要补充的是沙发背面的西厨空间,采用半高吧台可以作为沙发的“靠山”,这样更有脚踏实地的安全感,不然对于很多人来说总感觉空落落的。(ps:客厅和西厨的空间划分,除了有充当沙发靠山的半高吧台,还有顶面的梁)

西厨介于客餐厅和中厨之间,处于最核心的中间位置,好处在于,无论是制作轻食辅食,还是还是研磨咖啡以及烧水泡茶等等,都能缩短家事动线,很快抵达的同时,便于各个空间的交流和互动,尤其是和客厅,毕竟这既是待人接物的地方,也是我们除卧室以外待的时间最长的地方,所以说以上的使用场景和使用频次非常高。难怪仅凭一个厨房就圈粉无数,实在是太会布置了。


家具方面,客厅选用结构轻巧的大理石双拼茶几,配上L型的灰色皮质沙发效果也不错。其它则是对面和中厨划分空间的沙发背景墙,由于是承重墙,这部分结构就没有改动。装修本身的话,采用分区设计,左侧通刷白色的乳胶漆显得干净纯粹,配上格栅元素+筒灯烘托就有简约却不简单的质感。
书房

左侧书房,右侧西厨+客厅,对流效果yyds


与客厅相对的北面书房为了和其它空间相互区分,就将地面抬高,做了木质的地台。布局方面的话,为二字型结构,左侧是双人位的书柜+简易吊柜,右侧则是大面积的书柜,总之实用性很强。

这个是通往卧室的走廊。
主卧



主卧的床头背景墙同样采用分区设计,左侧是蓝色的皮质硬包,右侧是木格栅,两者结合看着比单纯的只刷乳胶漆要更有质感。其它则是干净利索的大平顶,配上简约舒适的床品和寝具,再在柔美窗帘和休闲阳台的衬托下,就营造了一股神秘优雅又沉静的氛围出来,非常适合休息。

与主卧相邻的北次卧改成了前者的独立式衣帽间。
次卧


次卧以白色的顶面为主,配上床头墙色调清新淡雅的艺术漆,看着非常舒服。其它则是简约的寝具和舒适的床品,结合床头左侧的免拉手衣柜,简约大方的效果其实也不错。
卫浴

最后的主卫由于空间比较紧凑,就在右侧做了类似被斜切了一个角的淋浴房。其它则是灰色的岩板洗漱台,配上爵士白的墙砖,还有干净利索的石膏板平顶等等,效果显得时尚又整洁。至于最左侧与主卧的连接处,设置了电雾化玻璃,这样可以一键切换至通透模式和隐私模式。
至此本文就分享到了这里,感谢大家阅读。
(注:本案文字原创,图片来源于设计师@肖军,如有侵权,请联系删除)
想要了解更多精彩内容,快来关注@美家手记







