2020年第二期室内设计联盟平面户型设计优化比赛圆满落幕!
比赛由原投票分数的基础上,经过特邀评委
哲也/三哥/半生熟
三位实力设计师
的评审后得出排名
我们精心为大家挑选了20个优秀作品
开始欣赏作品吧!
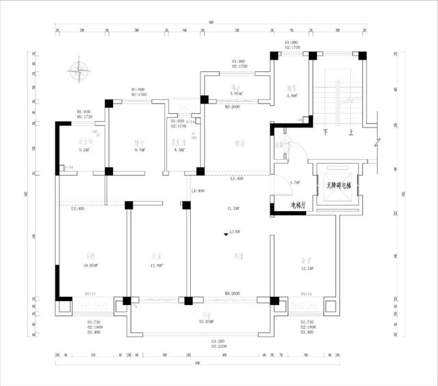
原始平面图
    
    
【房屋情况】
2020年底交房
顶层西边户,楼体共7层,
电梯洋房,层高3米,
框架总面积160㎡,
电梯入户,候梯厅可以利用
南北双阳台
【业主要求】
一家三口,30岁左右的夫妻,公务员
刚生一男宝宝,注重生活品质。
1:预留主卧/儿童房/书房/父母房
2:多收纳空间,实用为主
3:希望大衣帽间或者独立衣帽间
4:增大厨房面积,开放半放都可
5:浴室不需要浴缸
6:喜欢黑白灰,全屋智能化,开发商带智能模块
前三名作品
金奖
闫雪芹
    
哲也点评
优点:功能合理,简单实用,动线灵活,且符合小孩的成长性与玩耍阶段,同时让家增添了趣味性。
建议/缺点:客厅的配置感较低,如能更好的释放机能,让客厅更与多种场景交互。
半生熟点评
在3个卧室朝南的情况下还能满足这么好的空间感及互动性实数难得,中心书房的形式很有趣,在保证功能的同时保证了很好的空间感及通透性,可以给未来小孩带来很多乐趣,书房通透可以在办公的同时还能兼顾小孩,
主卧功能性很强,但稍有不足就是主卫的考虑,其实是有条件不动原卫生间位置的,虽然但是,瑕不掩瑜,整体方案还是很棒。
三哥点评
一个好的设计,主题是非常明确的。
这个案子我选第一名;有四个细节:
1.大平层空间的设计,视线的开阔程度是非常重要的;房间要做的开阔,首先得满足合适的空间改造(比如墙体的拆建);大多数选手,纠结墙体要什么去突破变化,这很容易带出一定“符号”特征;但是,这位选手用开放式的书房+小孩的玩耍互动(这是两种不同的【变量】成年人+小孩;(也可以理解1+1=1)好的案子和业主的生活方式是一致的。
2.方案的优化有很多种,比如功能改造、生活方式提升、户型本身的利弊优化、得房率的增减等等。其中功能改造和得房率一直是很多设计师碰的最多的;功能改造不是技术,更不是艺术、是想法;可以理解为对房间实用性进行扩展(该选手的玩耍区就是一个扩展坞)我能找到这个区域在以后的使用具有多样性;希望用主题去设计,但不要太过于让主图去固化业主的生活方式。
3.接下来,我就要讲到最关键的一个点【收纳】;前段时间,做设计要什么【断什么、舍什么、离什么】从普遍的客户群体来看;(家里的收纳柜要充足,空间要整洁)这里本质就划入了购物回家后,使用的频率问题;这里要分2条线:A、厨房区域+玄关区域(收纳的容积够不够)B、单独的收纳空间会增加使用动线的频繁;这种会不会去考虑各个房间的单独收纳(常见的就是卧室柜体+公共区域的柜体拉通)那么问题来了,柜子到底做不做封闭式的柜门;这个案子有一个很好的考虑,每个区域独立收纳能解决。下次试试把柜子的体积算出来,有多少容积;可以在方案沟通的时候告知业主,数学很能解决问题。
4.阳台的扩建其实并不好;大多数业主对阳台都会动“恻隐之心”空间虽然变大,(这里就算开窗,开窗面积多大?很容易把内部的客厅直接给交代了)而且房间空气很容易污浊;尤其是你还考虑了半开放的是厨房;可以把阳台单独定位,交给绿植来美化空间;一米咫尺,两种世界。
银奖
农夫渔夫
    
哲也点评
优点:规划合理,整洁灵活。客厅的组合家具,产生了多样交互场景的结合,过道增添了趣味。
缺点:厨房操作区的配比相对单薄。
建议:增设西厨或酒吧,从品质提高空间的生活实用性与态度。
半生熟点评
整体空间气场很足,也看见过几个类似的方案,比如99号也是差不多的空间取舍,但是这个方案有两个位置是我比较介意的,第一是主卧跟主卫之间的关系,主卫的尺度不舒服,第二是生活阳台,在生活中这个阳台衣物晾晒,私密性不够,这是设计面对生活的残酷,特别是有小孩的家庭,衣服多,在加上三代同堂,衣物晾晒会混乱且不够。
三哥点评
1、功能分区样式新颖,独立的大横厅设计,相当能体现空间的整体带入感,客厅的沙发布局,主题极其明确;严格来说,这个案子是我很满意的一个,但就是南面父母房去公卫的动线;破坏了我最喜欢的客厅。(穿插了空间整体)
2、小孩房的床换1350mm宽的;留出一定开阔的区域做学习、玩耍;主卧室的衣帽间还可以给一个(吊滑门)尝试把空间做一个简单的分割;这个案子有很多有点(收纳关系很强大)能把客厅体现一个大空间,又不丢掉空间的收纳关系。
铜奖
岑梓濠
    
哲也点评
优点:客厅+水吧+书房的结合,产生了多样交互场景的结合,让家有了不一样的可能性。手绘能力很好,深化设计还需提高。
缺点:家政洗衣阳台干扰,集中处理提高生活品质。
建议:对小孩的成长性,可灵活转化更大的亲子活动空间。
半生熟点评
这个方案公共区域处理有点意思,互动关系不错,但细看空间有点碎,功能有重复干,阳台太小,空间稍微有点失去平衡感。
优秀作品
(排名不分先后)
奥文
    
半生熟点评
方案表达很有意思,空间配套也挺好的,但公共区域偏小了,如果人口不多是可以的,但三代同堂就比较难活动的开,特别是客厅,虽然特别但不实用,至少在这个家庭配置下不合适。
三哥点评
1、过道的划分序列感很好;这种容易让过道两侧区域面积比例相对不平衡(客厅和主卧室的面积划分)房间墙体一旦多了后,空间的分割就越明显,这个案子很容易判断在创作的时候,对过道的考虑占了主要思考,其次就是主卧室的考虑。每个放房间的收纳关系很充分。
2、餐厅的圆桌很占面积;空间很堵还是回到过道的关系来看,这个案子过道左右两侧,就被过道的样式制约了;可以从整体关系来看,如果整个平面你觉得空间尺度不均衡,就先调整主要的框架(一般都是指主动线)。
霸霸
    
哲也点评
优点:规划合理,干净整洁,餐厨配比优越,实用价值高。
缺点:书房与景观阳台场景品质生活性欠缺
建议:释放书房与阳台的尺度,及对家中小孩成长的关怀设计。
半生熟点评
空间处理的很大胆,空间感处理的很大气,细节处理让我想起了琚宾老师的【画屏】,空间有得有失,大的公区选择就意味着有一个卧室位置以及空间感不是太理想,如果这是两个固定卧室一个客房的话,这是一个很棒的方案,
可惜不是,可惜了,主卧跟卫生间以及衣帽间的关系很多人在做这个方案的时候都处理不好,这个方案我觉得解决的非常完美。
三哥点评
1、注重功能的分配与实用性一致;客厅空间功能完整,大横厅的布局;但顶面有梁口关系要处理;弱化天花的梁口可以通过造型样式去调整;也可以忽视它。
2、主卧室的组合功能完整,建议把床头的位置对调一下;阳台位置的书房设计灵活性较高,小孩房的主题也很明确;西厨台面扩展开的位置,满足不同的功能用途。
陈磊
    
哲也点评
优点:功能组织合理,以设景的方式弱化了柱子中心化问题。
缺点:鞋帽区储能少,主卫紧凑。
半生熟点评
这个方案中心亮点的想法很好,但是在不大的房子里去做这么个东西会牺牲很多实用性功能,这个方案明显小孩房牺牲了太多,终是小孩一个人扛下了所有,在这个年纪承受了TA不该承受的东西,在居家空间设计中大取舍方向
还是要以功能为重心。
三哥点评
设定剧本给业主拍一场生活场景的电影
1.房间进门第一个视觉景点出现,这个地方其实是空间的起点,中心区域就开始描述故事的开始;在周边的位置辐射出来的物件,相应的都要吻合这个景点的意义;这种手法做平面布局往往很难,单个来看挺有趣味性;一旦视线转移后,周边的区域没有和他有一个直接联系或者间接联系,就很容易短片。
2.这种设计目前也有很多设计师在做,大部分在公装项目中用的较多;也有一定的现实意义,不是简单的视觉感受,都有表达的内容,功能性设计还是很重要的,其实,可以考虑一个具备收纳存储的【扩展坞】,这也符合业主的要求(多收纳空间+使用为主)收纳=使用频率+使用效率;厨房的布局关系交代的也很明确(注意:下次放燃气灶的时候注意开关方向)外围的空间西厨台面与餐台做了一个完整的组合;进户位置很开阔,难免会产生一部分“浪费”,但是仔细琢磨下(小孩自己在这搭积木,家人回来后,有没有一种抱起来的关系呢?)其实就是给小孩提供的一个玩耍区。
3.这个案子其实也注入了不少的生活品质元素,从南面的客厅和背后的书房功能建立了一个半通透的隔墙(模糊空间界面-分割的墙体),我觉得以后这样的处理手法还会有更多的人用到;也是一种客厅逆袭成为大横厅的做法;这种开合状态也能满足不同的使用诉求。
4.最后我补充一点就是:进门的景点是问题,但并不意味着做的不合理;而在于这个景点元素上隐喻了什么?一般来说这种景点和业主生活方式要有一致性,反之方案则石沉大海。没有其他的组合呼应关系,就会很单一。
黄泽鹏
    
半生熟点评
这个方案主卧的处理还是挺有意思的,空间体块穿插,功能关系都不错,整体空间感很强,舒适性不错。
三哥点评
1、客厅大横厅的做法能很好的把左右视线范围拉开;进户过道门洞设立的玄关位置,也恰到好处。主卧室的衣帽间,考虑的通透性较高的衣柜,对于衣物的整理也是一种考验。
2、整个空间的收纳存储功能,非常的充分;过道设立的柜体关系有效的把卫生间的门洞关系做了回避;餐厅空间的整体性和客厅呼应关系做的很好,比例尺度得体。
李仲飞
    
半生熟点评
这个方案空间互动关系处理的还不错,主卧跟小孩房之间的联系很方便,但是小孩房稍微小了些,再加上朝向不是很理想,中心位置的封闭空间有点为了环形而做的一个东西,这块东西有点浪费面积,同样的环线跟12号对比就弱了些,比如通透性,互动性等,稍微欠缺考虑。

林陈江
    
三哥点评
1.动静分区明确;次卧室的分区抓住了动线的效率;但卧室的门开的比较集中;可以把主卧室的门往里面设置;向下的方向开启;还能给出一个玄关;就不用设置进门处的绿植。
2、多功能房的考虑,利用非常充分;还能搭建一个简易的小客房,极好的把生活方式体现出来。餐厅的端景台,其实并没起到很好的视线分割作用;这个案子的收纳空间明显足,能搭建有收纳的还有(餐厅+客厅)墙面的柜体考虑。
卢星海
    
三哥点评
把一个故事放进户型平面中来。
1、房间的视觉关系做的很完整,各个框架都能很好的交代一个区域的场景,而且相互间还能有联系;这个案子有一个很好的功能分区逻辑;首先是南面的书房换成卧室,就会产生去公共卫生间动线较远,这样很好的协调了房间的使用关系;一个住宅的空间能很好的约束的房间位置;厨房对应吧台的样式很好的拉开了空间的动线尺度,视觉关系非常开阔,尤其是中西厨的关系摆放的位置关系极显秩序。
2.这个案子能很好的从平面感受到房间立面的内容;进门玄关在过道的远处设定了【对景】关系;起到了很好的主题作用,这种方式适合大户型;分享一个有意思的(就是小孩房不用去放置玩耍的物件摆设,这种很容易导致床的样式选择出现限制;比如划一块区域做玩耍;再给点亲子互动小沙发;也把墙面重视起来;顺便考虑下小孩成年后,有没有一个道具的摆设【吉他、篮球、玩偶】等等】书桌很有可能要做大)。
3、注重品质也好,或者符合刚需的功能性设计;不妨在做方案前统计下我要满足空间容纳的体积数量;做一个归类(柜、隔、箱、抽屉)的数据;平面方案布局用的是矩形框,标识了平面的收纳位置;做一个数据分析表,放置在方案旁边;业主也能很好的了解数据关系。
4、主卧室床的摆放如果是站在大多数业主的使用关系来看,不一定能认同;但思路的探讨也是很不错的。主卫生间把梳妆换洗的区域放置外侧和衣帽间;估计会好一些。书房地面抬高,可以有效的强化分区的独立性;这样也会产生家具的高度不在同一地面,视线很容易干扰。
谭凡
    
哲也点评
优点:功能组织合理,布局饱满,整体不缺乏细节。
缺点:适当空间减法,使空间张弛有度。
半生熟点评
这个方案做的太满了,想要的东西太多的时候就很难照顾到尺度舒适跟动线舒适,有时候可以适当做一些减法。
杨何飞
    
哲也点评
优点:规划合理,干净整洁,餐厨配比优越,使用价值高。
缺点:平面套路常规,客厅体积与社交性没能与其他功能结合,欠缺主轴特点想法。
建议:打开空间让彼此产生不同的生活形态。
半生熟点评
整体上来看这个空间是很实用的,三卧室朝南,主卧跟主卫关系也解决的挺好的,但看起来整体空间有点平,没什么毛病,也没太多亮点,打个比喻就是个“老实人”,也不是说不好,但是在比赛中,看过太多的方案之后这就成了一个素菜,这是一个好方案,但在比赛中不占优势。
张晓莲
    
哲也点评
优点:功能组织合理,动线灵活性强,书房客厅开合关系场景相互衬托。
缺点:平面套路过于明显,欠缺主观的设计想法。
半生熟点评
又是一个中心环形动线的方案,入门的小景处理有点意思,这个中心位置的实用性稍微有点弱,整体空间还不错,但是小孩房的配比不是很舒服,主卫的尺度感也稍微差了些。
三哥点评
1、房间得房率较高;中心区域采用独立的储藏收纳空间;餐厅位置的家具样式不是非常合适的;但过于强调板块的组合,小孩房面积较小。
2、空间分割的过于零碎,表面看动线很明确;这同样也会产生穿插的频繁;空间缺乏安全感,但是大空间比如办公空间的设计,还是可以这样做。
其他优秀作品欣赏
(排名不分先后)
LUO 阳建
    
半生熟点评
如果没记错的话,这是唯一一个做了3个卫生间的方案,试图用加强功能配套及面积配比来弥补北面卧室,其实还挺舒服的,可以把小孩房的卫生间稍微再调大一点会舒服些,整体空间感挺好的,功能关系也到位了,可以加强一下细节处理,图面表达看着不是太舒服。
Pearson
    
半生熟点评
这个方案的空间体块穿插玩的有点意思啊,趣味性很强,但是随着小孩的成长书房功能会变得很弱,虽然可以重组客厅软装找回书房功能,但小孩的卧室不是特别理想,这个取舍还是有点大的。
Yyyy
    
三哥点评
1、这个案子我入选是我个人的一个假设;大多数我们做平面方案的时候都在考虑进入客厅要近,这就是为什么大多数,对跳出常规思维去做,很难去欣赏简单且美好的空间。
2、但是本案还有很多空间的组织能力缺乏,进门玄关的位置视线关系,让主卧室的私密性减弱;折叠门其实不适合用在卧室;这个案子的客厅平面布局还是应该选出来;其他空间就不敢恭维了;加油!
じ☆Ve→想
    
哲也点评
优点:半私秘书房成了很好的调味剂,让主人与小孩有了独立的玩耍场景,并与其他空间关联互动。
缺点:过于表现了过道的形式手段,公卫尺度紧凑。
大壮
    
三哥点评
1、动线穿插的有序列,把各个空间串联起来 ;这种对于进门的位置产生了视线拥堵;建议把柜子反向设置,尽可能有更好的尺度。
2、过道虽然做的很开阔,用柜体分割上下两侧;对于孝亲房的布局也是很用心的考虑;对于北面的小孩房到过道也形成了一个玩耍区;但采光相对较差;整体房型布局(得房率)很高。
刘沛旭
    
哲也点评
优点:功能布置合理,表现干净。主套双动线功能配置大胆。
缺点:主套配比过大,没有让空间的优势得到改善。
壹尾
    
三哥点评
1、平面布局严谨性非常高,但并不影响空间的相互联系;上下南北客厅于餐厅形成了一个大的空间板块;在家具样式的选择上面,有对空间独特的把握。
2、从东西横向来看,书房与客厅做横厅的设计,通透性也很强。收纳空间也非常充分;处理空间视线关系也非常到位。干湿分区的卫生间也能有效的提升空间的使用效率。








